The Lodge, Nunhead Cemetery, Linden Grove, London, Greater London, SE15 3LP

£36,500 pa To Let

  • Tenure:
    To Let
  • Property Type:
    Shop, Mixed use, Leisure
  • Size:
    2,012 Sq Ft / 186.92 Sq M

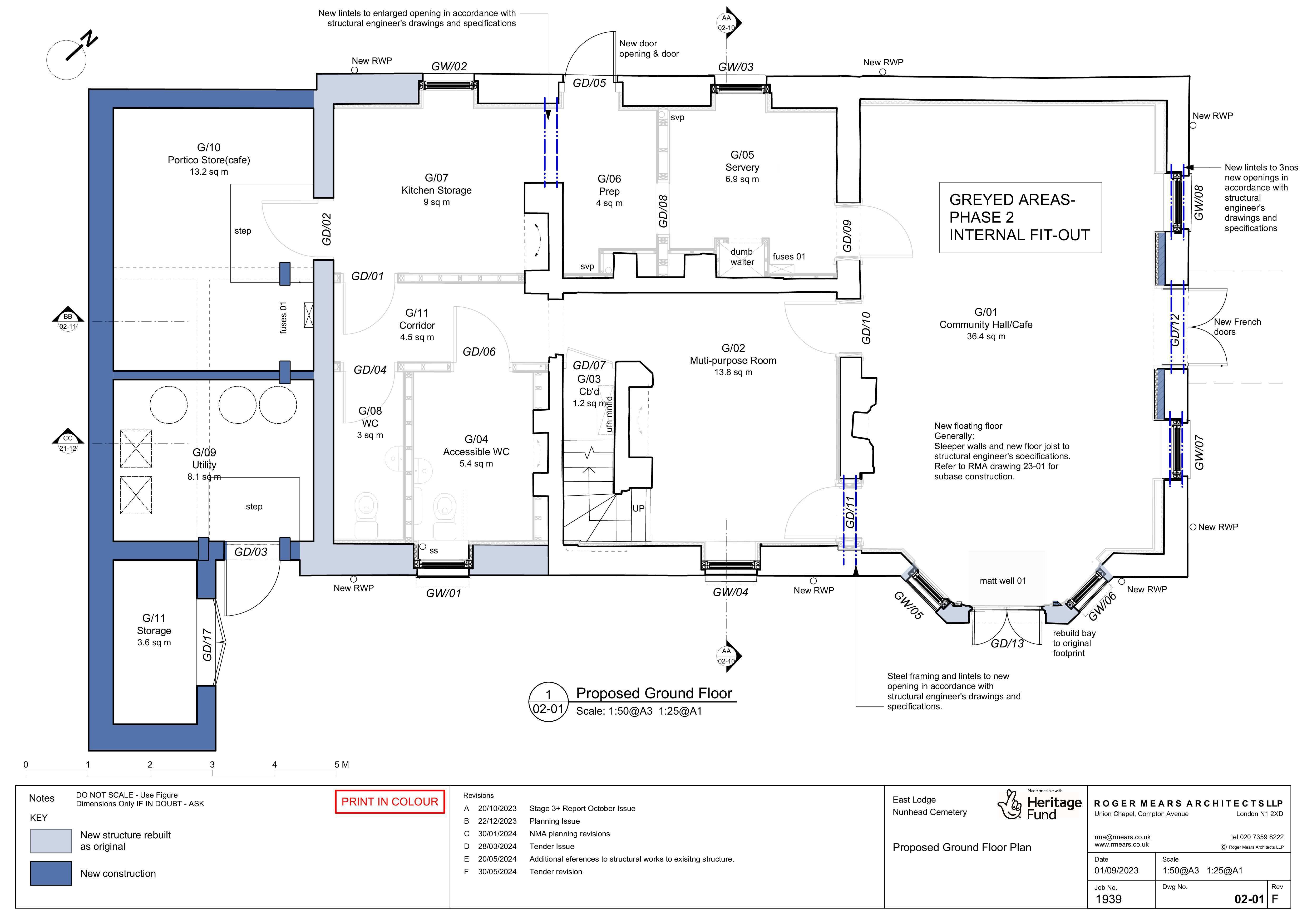
The East Lodge comprises of a ground and first floor redevelopment of this grade II listed
building. The Lodge will be restored as close to its original design externally, and for the
building to now be used for a café area, alongside a multi-purpose room, server and prep
area, with two WCs (one accessible).
And for the first floor to be used for to be used as a community office/hall space with a
kitchenette and reception area. The main hall and café area sizing at 36.3 sq. m for the
ground floor and 38 sq. m for the first floor, with the total ground & floor space being circa
187.1 sq m (2,012 sq. ft)

For more info contact:

Let us Give You an Accurate Property Appraisal

Value my Property