Unit 1, Riverside House, Kangley Bridge Road, London, SE26 5DA

£255,000 pa To Let

  • Tenure:
    To Let
  • Property Type:
    Industrial/Warehouse
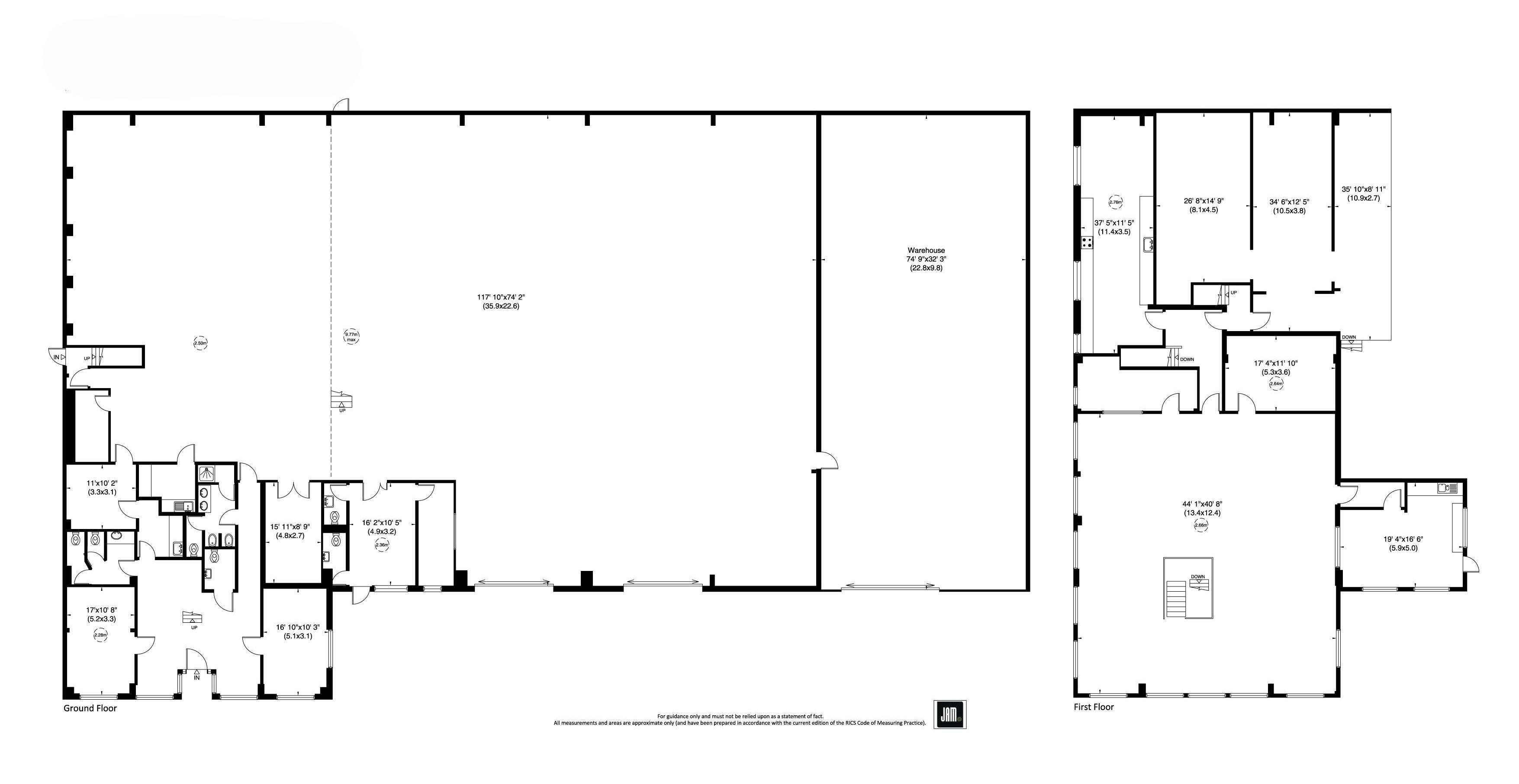
  • Size:
    13,442 Sq Ft / 1248.8 Sq M

Unit 1 Riverside House comprises a purpose built two-storey detached industrial unit constructed in the early 2000's, built of steel portal frame construction with solid concrete floors, pitched roof and two full height roller panel loading doors. The office content is located to the front left hand side of the of the building over ground and first floor with the warehouse to the right and rear.
The property benefits from a secure gated yard which is shared between both units and provides space for lorries to access and turn within the estate.

For more info contact:

Let us Give You an Accurate Property Appraisal

Value my Property