The Old Southern Forge, 11 Catlin Street, London, SE1 5UH

£115,500 pa To Let

  • Tenure:
    To Let
  • Property Type:
    Industrial/Warehouse
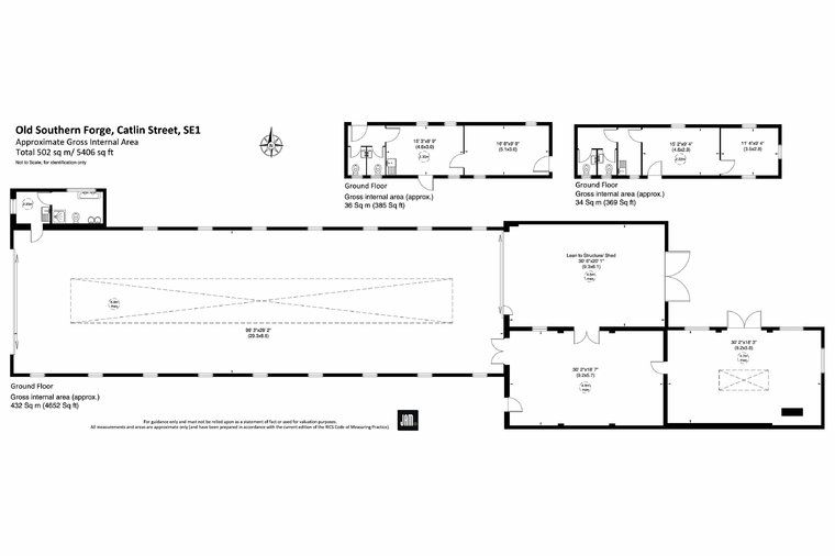
  • Size:
    5,407 Sq Ft / 502.33 Sq M

The Old Southern Forge itself comprises a main warehouse with two additional side buildings, a loading / parking area, portacabin offices and external toilets. There is further yard space available flanking the side of the building. The building is built of brick in 1965 and has most recently been occupied as a blacksmith but would still be suitable to a range of different industrial uses. Access to the property is via the gated yard and loading bay and into the unit via the large double doors and roller shutter at either end of the property.

For more info contact:

Let us Give You an Accurate Property Appraisal

Value my Property