Unit 1 Fairway House, Clyde Terrace, London, Forest Hill, SE23
£67,000
PROPERTY DETAILS
- 3499 Sq Ft / 325.07 Sq M
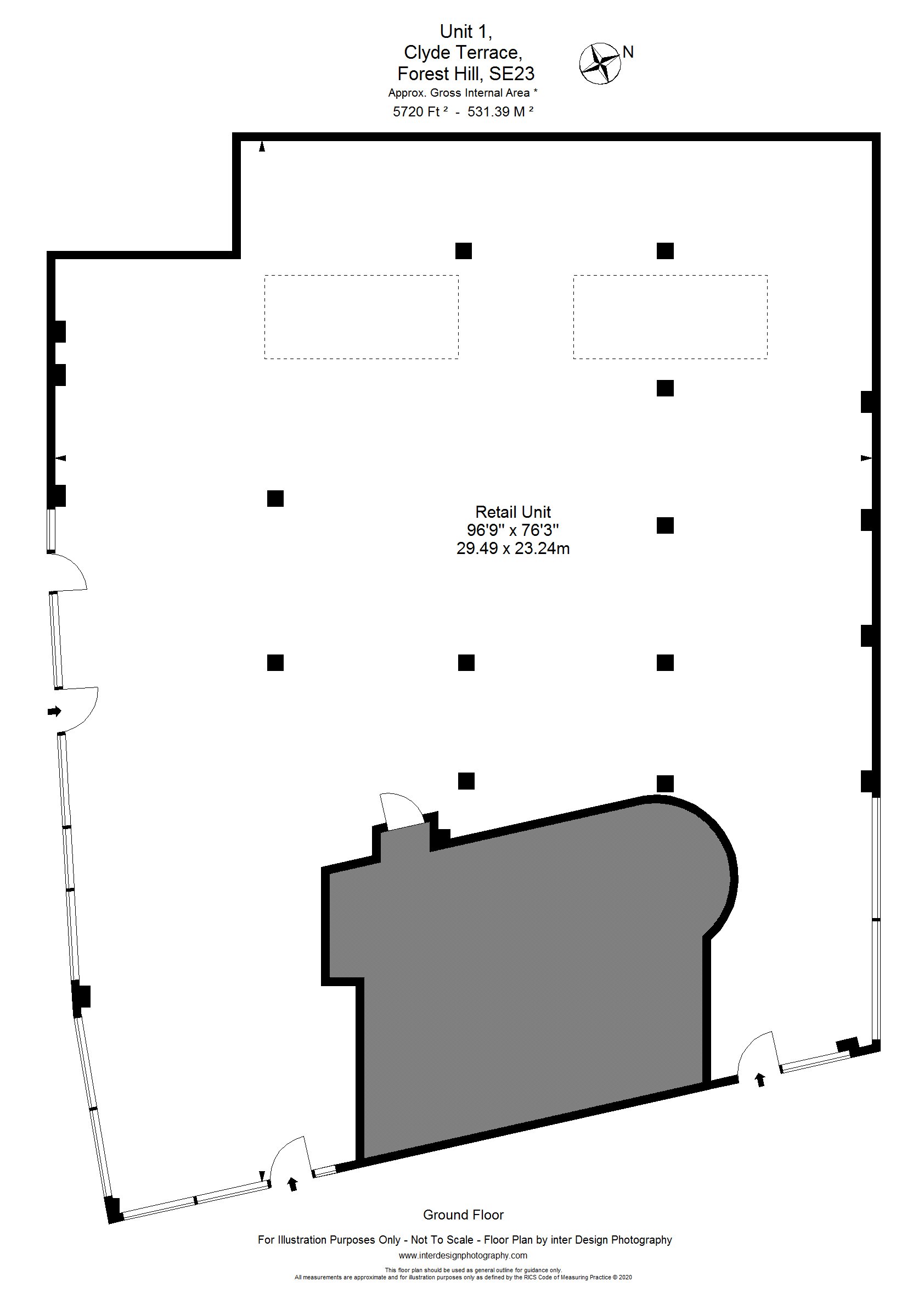
The space is divided into two areas on the ground floor of new residential blocks, both being approximately square, benefiting from good ceiling heights, large windows and all the modern services, including gas, fitted to service play points. The units are in shell and core condition and ready to be fitted out to suit the owners' requirements.
The property is situated in Clyde Vale parallel to Dartmouth Road, close to the increasingly fashionable centre of Forest Hill and just 250m from Forest Hill station (London Overground and Southern rail) from which London Bridge is 16 minutes travel time.
Unit 1 Fairway House, Clyde Terrace, London, Forest Hill, SE23
£67,000
Unit 1 Fairway House, Clyde Terrace, London, Forest Hill, SE23
£67,000
Unit 1 Fairway House, Clyde Terrace, London, Forest Hill, SE23
£67,000
LOCATION




